Emil Rysler
1991-1998 Associierter Architekt
Burckhardt + Partner AG
Entwurf
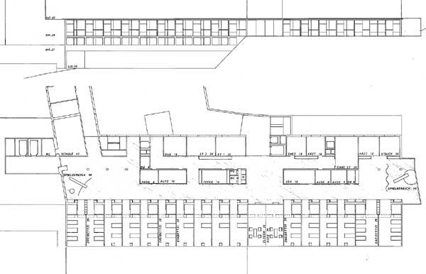
Das freiwerdende Erdgeschoss im Bettenhaus C wird zur Kinderklinik umgebaut. Mit seinem direkten Bezug zur grössten Ausdehnung des Obstgartens bietet es für Kinder ideale Voraussetzungen. Helle, von oben zusätzlich belichtete Zimmer sind pavillonartig der Hauptfassade vorgesetzt. die Zimmertüren sind auf die ehemaligen Fensteröffnungen abgestimmt, wodurch der Eingriff in die bestehende Tragstruktur minimiert wird. Im Innern entstehen grosszügige Bereiche für zusätzliche Aktivitäten. Der bestehende separate Zugang dient den in der Pflege mithelfenden Eltern.

Rechts:
Grundriss und Ansicht der neuen Kinderklinik. Die Erschliessung der Zimmer erfolgt durch die Fensteröffnungen der ehemaligen Fassade, die zwischen Sanitärzellen und Mittelgang zu erkennen ist.
Plan Kinderklinik
Rechts:
Schnitt durch eines der pavillionartig der Hauptfassade vorgesetzten Zimmer
Patientenzimmer Perspektive