1989-1991 Leiter der
ARPA Architektur AG
Konzept, Entwurf, Baueingabe
Modell;
Konzeptskizze

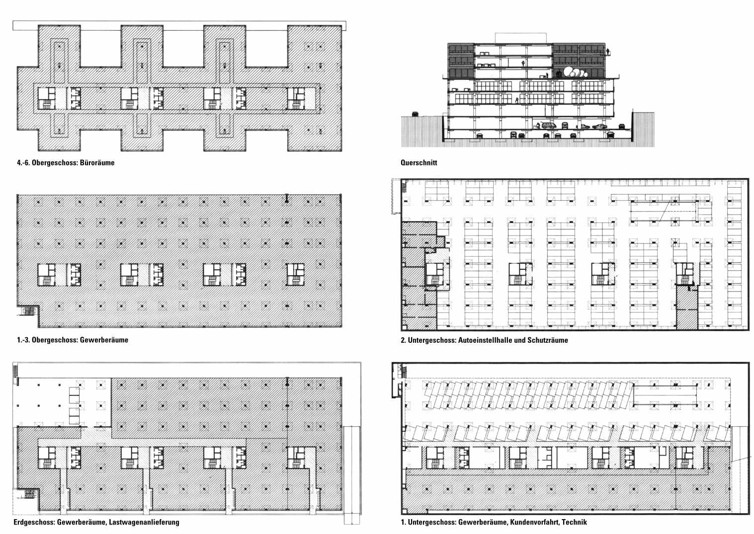
Auf zwei, inmitten des westlichen, an Frankreich grenzenden Gewerbegebiets gelegenen Parzellen wollten zwei Eigentümer gemeinsam ein Gebäude errichten, dessen Teile möglichst unabhängig genutzt werden können.
Der einfachen Parzellenform und den noch weitgehend unbestimmten Nutzungen entspricht der strikte Raster der Tragstruktur. Ihre horizontale Gliederung ist das Resultat einer Optimierung der Nutzungsanforderungen - der Bestimmung möglicher und der Ausscheidung unmöglicher - mit dem Ziel einer ökonomischen Dimensionierung und Erstellung der Tragstruktur. Flexible Nutzung und vorgeschriebene Anzahl Fluchtwege führte zur Teilung in vier Geschäftshäuser.
Während horizontal Teilung Thema ist, ist es in der Vertikalen die Gruppierung von Nutzungen und die Schaffung ihnen zugeordneter spezifischen Aussenräume. Auf drei, den Sockel bildenden Gewerbegeschosse folgen drei mäandernde, natürliche belichtete und belüftete Bürogeschosse.
Ein drittes Thema ist die Beziehung des Gebäudes zum Grund. Das Gebäude steht exzentrisch in einer Art Bassin, gebildet aus der Umschliessungswand, die dem von Parzellengrenzen und Baulinien vorgegebenen Perimeter folgt. Der Zwischenraum ermöglicht natürliche Belichtung und Belüftung der Untergeschosse. Er ermöglichte auch die Besuchervorfahrt im Untergeschoss mit direkten Zugängen zu den Geschäftshäusern - den heimlichen Haupteingängen.
Die einfache horizontale und vertikale Gliederung und die spezifischen Aussenräume ermöglichen den für die Orientierung im Gebäude und die Identität der Geschosse notwendigen Bezugsrahmen.

Projetpläne

Die Installationsstrukturen sind mit der gleichen sinnfälligen Einfachheit wie die Tragstruktur aufgebaut und in deren Raumgitter integriert. Jeweils zwischen zwei Erschliessungskernen mit den Steigschächten sind im Untergeschoss und auf dem Dach Lüftungszentralen angeordnet. Der verbleibende Raum in der Gebäudemitte dient der Heizung. Die horizontale Verteilung zu und ab den Steigschächten erfolgt an der Decke der Gangzone entlang den Erschliessungskernen.

Ansicht nach Bauvollendung Ansicht vom Hegenheimermattweg aus (kurz nach Bauvollendung)
Vogelschau heute Heute umrundet von Gebäuden der frisch angesiedelten Life Sciences Firmen